ГЛАВНАЯ
КАТАЛОГ
ДОМА ИЗ БРУСА
ДОМА ИЗ БРЕВНА
ДОМА ИЗ КИРПИЧА
ДОМА ИЗ ГАЗОБЕТОНА
ДОМА ИЗ КЕРАМЗИТОБЕТОНА
БАНИ
УСЛУГИ
СТРОИТЕЛЬСТВО
ПРОЕКТИРОВАНИЕ
ОБЪЕКТЫ
СТАТЬИ
ЦЕНЫ
КОНТАКТЫ
Записаться на консультацию
ГЛАВНАЯ
КАТАЛОГ
ДОМА ИЗ БРУСА
ДОМА ИЗ БРЕВНА
ДОМА ИЗ КИРПИЧА
ДОМА ИЗ ГАЗОБЕТОНА
ДОМА ИЗ КЕРАМЗИТОБЕТОНА
БАНИ
УСЛУГИ
СТРОИТЕЛЬСТВО
ПРОЕКТИРОВАНИЕ
ОБЪЕКТЫ
СТАТЬИ
ЦЕНЫ
СОТРУДНИКИ
КОНТАКТЫ
+ 7 (927) 303 72 72
102ДОМА.РФ
г. Уфа, ул. Кирова 136/1, офис 202
+7 (927) 303 72 72
+7 (347) 266 11 44
Заказать звонок
Главная
»
Проекты
»
Дома из керамзитобетона
»
Дом из керамзитобетона "АР-219"
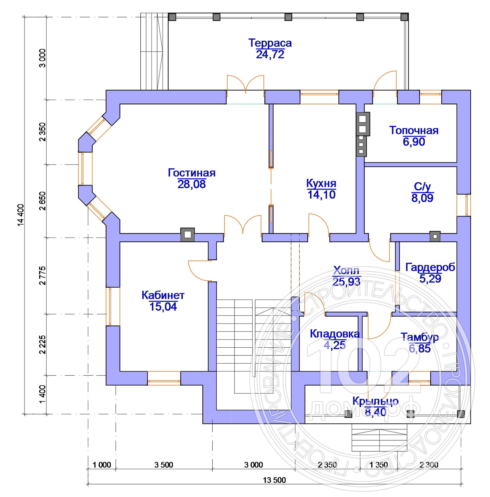
Дом из керамзитобетона "АР-219"
Площадь:
219,3 м
2
Размеры: 14,4x13,5 м
Этажность: 2 этажа
4
1
спальни
терраса
Материал: керамзитобетон
Узнать стоимость
Планировка
1 этаж
2 этаж
Стандартная комплектация
Опции комплектации могут быть изменены
или исключены по желанию
Фундамент дома
-
Буронабивные железобетонные сваи
- Монолитный ростверк /монолитная плита
- Кладка нулевого уровня керамическим кирпичом
- Устройство паребрика по периметру
- Монолитное перекрытие цоколя (ж/б плита по грунту/сборные плиты перекрытия)
- Устройство сантехники нулевого уровня
Стеновой комплект
- Стены несущие из керамзитобетона
- Межэтажное перекрытие - по деревянным лагам
- Перекрытие чердака -деревянные балки
Материал крыши
- Стропильная система, обработанная огнебиозащитой
- Металлочерепица типа "Монтеррей"
Монтаж
- Включен
Другие проекты
Дом из керамзитобетона "АР-133"
Площадь: 133 м2
Размеры: 13х8,5 м
Этажность: 2 этажа
2 927 320 руб.
Подробнее о проекте
Дом из керамзитобетона "АР-187"
Площадь: 186,9 м2
Размеры: 15,5x16,2 м
Этажность: 2 этажа
4 111 800 руб.
Подробнее о проекте
Дом из керамзитобетона "АР-177"
Площадь: 177,2 м2
Размеры: 10,6x20,4 м
Этажность: 2 этажа
3 898 400
руб.
Подробнее о проекте
Дом из керамзитобетона "АР-112"
Площадь: 112,3 м2
Размеры: 9,5х10,5 м
Этажность: 2 этажа
2 470 600
руб.
Подробнее о проекте
Дом из керамзитобетона "АР-199"
Площадь: 199,49 м2
Размеры: 14,8х16,8 м
Этажность: 2 этажа
4 389 700
руб.
Подробнее о проекте
Не нашли подходящего проекта?
При заказе строительства мы бесплатно разработаем индивидуальный проект с учётом вашего бюджета и пожеланий.
Отправить заявку
Нажимая кнопку "Отправить заявку", Вы соглашаетесь с
Политикой конфиденциальности
.
Made on
Tilda