ГЛАВНАЯ
КАТАЛОГ
ДОМА ИЗ БРУСА
ДОМА ИЗ БРЕВНА
ДОМА ИЗ КИРПИЧА
ДОМА ИЗ ГАЗОБЕТОНА
ДОМА ИЗ КЕРАМЗИТОБЕТОНА
БАНИ
УСЛУГИ
СТРОИТЕЛЬСТВО
ПРОЕКТИРОВАНИЕ
ОБЪЕКТЫ
СТАТЬИ
ЦЕНЫ
КОНТАКТЫ
Записаться на консультацию
ГЛАВНАЯ
КАТАЛОГ
ДОМА ИЗ БРУСА
ДОМА ИЗ БРЕВНА
ДОМА ИЗ КИРПИЧА
ДОМА ИЗ ГАЗОБЕТОНА
ДОМА ИЗ КЕРАМЗИТОБЕТОНА
БАНИ
УСЛУГИ
СТРОИТЕЛЬСТВО
ПРОЕКТИРОВАНИЕ
ОБЪЕКТЫ
СТАТЬИ
ЦЕНЫ
СОТРУДНИКИ
КОНТАКТЫ
+ 7 (927) 303 72 72
102ДОМА.РФ
г. Уфа, ул. Кирова 136/1, офис 202
+7 (927) 303 72 72
+7 (347) 266 11 44
Заказать звонок
Главная
»
Проекты
»
Дома из оцилиндрованного бревна
»
Дом из оцилиндрованного бревна "ОЦБ-121"
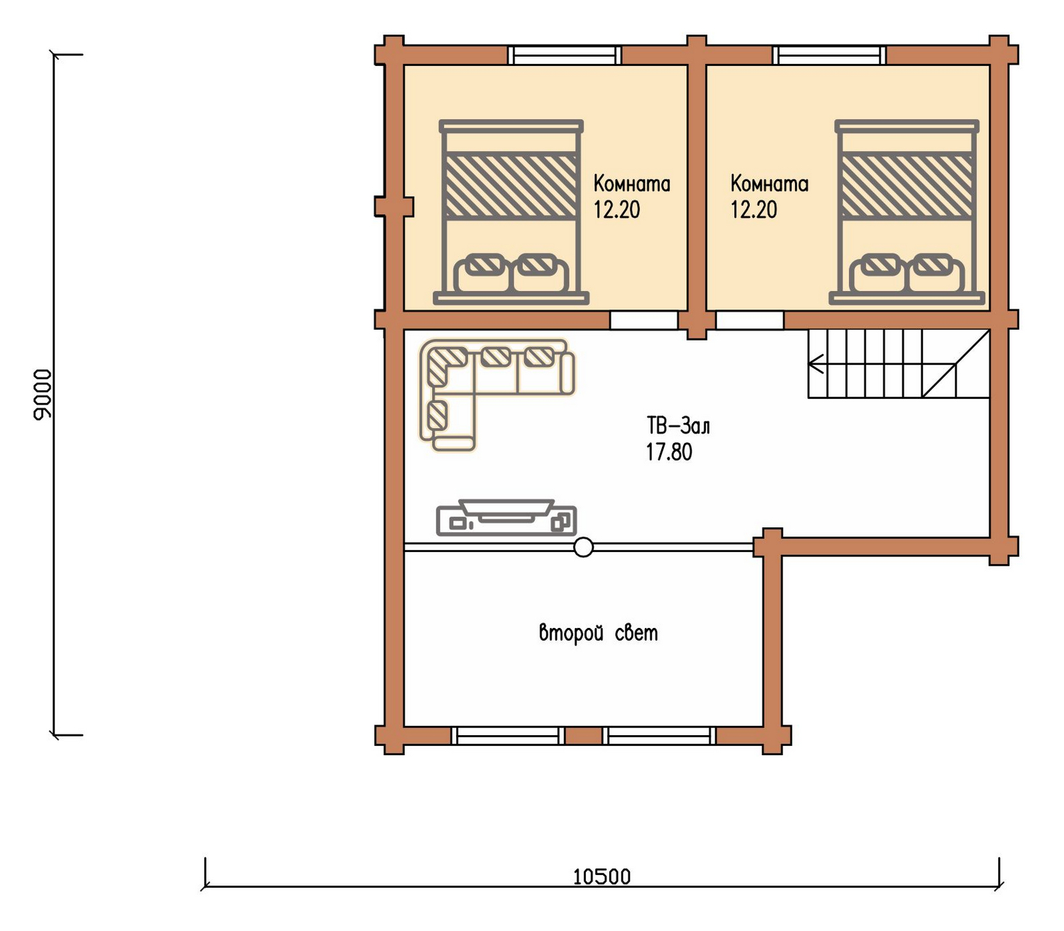
Дом из оцилиндрованного бревна "ОЦБ-121"
Площадь:
121,4 м
2
Размеры: 9х10,5 м
Этажность: 2 этажа
3
1
комнаты
санузел
Материал: оцилиндрованное бревно
Узнать стоимость
Планировка первого этажа
Планировка второго этажа
Стандартная комплектация
Опции комплектации могут быть изменены
или исключены по желанию
Фундамент дома
-
Свайно-ростверковый:
ростверк армированный, сечением 300х600 мм,
на буронабивных свях (диаметр 300 мм, длина 2000 мм)
Стеновой комплект
- Конструктор из профилированного бруса 150х200 мм
- Лаги, балки
- Утеплитель межвенцовый
Материал крыши
- Стропила 50х200 мм
- Обрешетка
- Парогидроизоляция
- Металлочерепица
Монтаж
Другие проекты
Дом из оцилиндрованного бревна "ОЦБ-120"
Площадь: 120,3 м2
Размеры: 12х12 м
Этажность: 1 этаж
2 472 030 руб.
Подробнее о проекте
Дом из оцилиндрованного бревна "ОЦБ-121"
Площадь: 121,4 м2
Размеры: 9х10,5 м
Этажность: 2 этажа
2 309 890 руб.
Подробнее о проекте
Дом из оцилиндрованного бревна "ОЦБ-122"
Площадь: 122,7 м2
Размеры: 12х7,5 м
Этажность: 2 этажа
2 259 400
руб.
Подробнее о проекте
Дом из оцилиндрованного бревна "ОЦБ-123"
Площадь: 123,2 м2
Размеры: 8х11 м
Этажность: 2 этажа
2 299 220
руб.
Подробнее о проекте
Дом из оцилиндрованного бревна "ОЦБ-127"
Площадь: 127,6 м2
Размеры: 11х19 м
Этажность: 2 этажа
2 654 960
руб.
Подробнее о проекте
Не нашли подходящего проекта?
При заказе строительства мы бесплатно разработаем индивидуальный проект с учётом вашего бюджета и пожеланий.
Отправить заявку
Нажимая кнопку "Отправить заявку", Вы соглашаетесь с
Политикой конфиденциальности
.
Made on
Tilda