ГЛАВНАЯ
КАТАЛОГ
ДОМА ИЗ БРУСА
ДОМА ИЗ БРЕВНА
ДОМА ИЗ КИРПИЧА
ДОМА ИЗ ГАЗОБЕТОНА
ДОМА ИЗ КЕРАМЗИТОБЕТОНА
БАНИ
УСЛУГИ
СТРОИТЕЛЬСТВО
ПРОЕКТИРОВАНИЕ
ОБЪЕКТЫ
СТАТЬИ
ЦЕНЫ
КОНТАКТЫ
Записаться на консультацию
ГЛАВНАЯ
КАТАЛОГ
ДОМА ИЗ БРУСА
ДОМА ИЗ БРЕВНА
ДОМА ИЗ КИРПИЧА
ДОМА ИЗ ГАЗОБЕТОНА
ДОМА ИЗ КЕРАМЗИТОБЕТОНА
БАНИ
УСЛУГИ
СТРОИТЕЛЬСТВО
ПРОЕКТИРОВАНИЕ
ОБЪЕКТЫ
СТАТЬИ
ЦЕНЫ
СОТРУДНИКИ
КОНТАКТЫ
+ 7 (927) 303 72 72
102ДОМА.РФ
г. Уфа, ул. Кирова 136/1, офис 202
+7 (927) 303 72 72
+7 (347) 266 11 44
Заказать звонок
Главная
»
Проекты
»
Дома из профилированного бруса
»
Дом из профилированного бруса "СК-127"
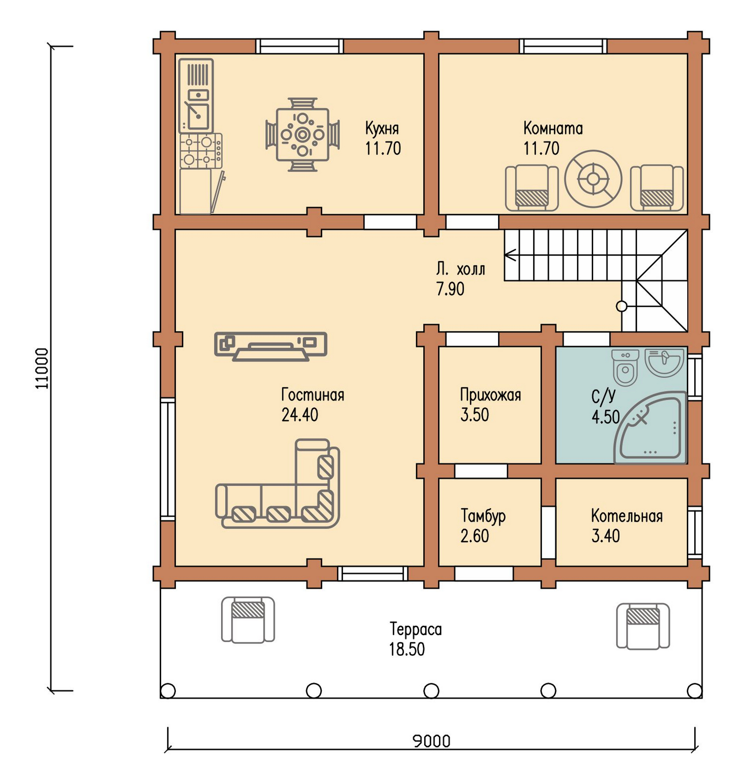
Дом из профилированного бруса "СК-127"
Площадь:
127,6 м
2
Размеры: 11х9 м
Этажность: 2 этажа
3
1
комнаты
терраса
Материал: профилированный брус
Узнать стоимость
Планировка первого этажа
Планировка второго этажа
Стандартная комплектация
Опции комплектации могут быть изменены
или исключены по желанию
Фундамент дома
-
Свайно-ростверковый:
ростверк армированный, сечением 300х600 мм,
на буронабивных свях (диаметр 300 мм, длина 2000 мм)
Стеновой комплект
- Конструктор из профилированного бруса 150х200 мм
- Лаги, балки
- Утеплитель межвенцовый
Материал крыши
- Стропила 50х200 мм
- Обрешетка
- Парогидроизоляция
- Металлочерепица
Монтаж
Другие проекты
Дом из профилированного бруса "ФН-115"
Площадь: 115,6 м2
Размеры: 11,8х12,3 м
Этажность: 1 этаж
5 651 000 руб.
Подробнее о проекте
Дом из оцилиндрованного бревна "ОЦБ-120"
Площадь: 120,3 м2
Размеры: 12х12 м
Этажность: 1 этаж
6 472 030 руб.
Подробнее о проекте
Дом из профилированного бруса "ФН-104"
Площадь:104,2 м2
Размеры: 6,8х9,8 м
Этажность: 2 этажа
4 478 300 руб.
Подробнее о проекте
Дом из кирпича "КР-160"
Площадь: 160,8 м2
Размеры: 15,8x10,3 м
Этажность: 2 этажа
8 824 000 руб.
Подробнее о проекте
Дом из профилированного бруса "ФН-110"
Площадь: 109,6 м2
Размеры: 10х12 м
Этажность: 1 этаж
4 689 500 руб.
Подробнее о проекте
Дом из профилированного бруса "ФН-109"
Площадь: 109,2 м2
Размеры: 11,5х12 м
Этажность: 1 этаж
4 508 000 руб.
Подробнее о проекте
Дом из газобетона "ГБ-177"
Площадь: 177,2 м2
Размеры: 10,6x20,4 м
Этажность: 2 этажа
4 544 000 руб.
Подробнее о проекте
Дом из профилированного бруса "ФН-132"
Площадь: 132,1 м2
Размеры: 10х9 м
Этажность: 2 этажа
5 967 800 руб.
Подробнее о проекте
Не нашли подходящего проекта?
При заказе строительства мы бесплатно разработаем индивидуальный проект с учётом вашего бюджета и пожеланий.
Отправить заявку
Нажимая кнопку "Отправить заявку", Вы соглашаетесь с
Политикой конфиденциальности
.
Made on
Tilda